欢迎您来到机电设备采购平台!
首页 >

[询比价采购]濮阳绿宇新材料科技股份有限公司2025年4月定柱式悬臂吊机询比价采购采购公告

[询比价采购]濮阳绿宇新材料科技股份有限公司2025年4月定柱式悬臂吊机询比价采购采购公告

  • 收藏
  • 打印
  • 字小
  • 字大+
信息时间:
2025-04-22
招标文件下载

询比价采购公告

(适用于设备类采购)

定柱式悬臂吊机采购项目

项目编号:

1.采购条件

******有限公司20254定柱式悬臂吊机询比价采购项目,已经采购人批准,采用公开询比价采购方式进行。

2.项目概况及范围

2.1货物采购明细

序号

物资名称

规格型号

生产厂家/品牌

计量单位

采购数量

1

定柱式悬臂吊机

详见技术规范书

 

1

2.2交货期:合同签订后10天内。

2.3交货地点:濮阳市人民路西段中原大化绿宇公司院内。

2.4采购控制价:□     万元 ?

2.5备选方案报价:□接受?不接受

2.6资金来源:自筹资金

3.报名要求

3.1本次询比价采购在中原云商电子投标平台(******/)上进行,有兴趣的供应商可以登陆查看。登录后,供应商可在中原云商电子投标平台网上购买询比价文件进行响应和参与询比价活动。首次参与中原云商电子投标平台购标者,请打开中原云商电子投标平台首页右侧点击“供应商登陆”,在页面中找到注册按钮,按照要求进行网上注册,注册通过后方可参加询比价活动。有报名意向的供应商报名前请仔细阅读本项目采购公告及附件内容。如有任何疑问,可与采购方业务人员或技术人员进行沟通。

3.2须为中华人民共和国境内依法注册的独立法人或其他组织,有效营业执照。

3.3供应商需提供最近5年相同或类似成功运行业绩2个,并提供有效合同(必须提供合同原件扫描件合同内容应能体现货物主要技术参数或型号)。

3.4响应人不得具有下列情形之一:

3.4.1响应人提供的货物和服务侵犯或违反任何第三方的工业产权、知识产权或引起索赔的;

3.4.2法定代表人或单位负责人为同一人或者存在控股、管理关系的不同单位,参加同一包响应的;

3.4.3被责令停产停业的;

3.4.4财产被接管或冻结的;

3.4.5在响应截止日前三年内存在串标、围标、骗取中标或严重违约等问题的;

3.4.6在响应截止日前三年内发生因响应人原因造成的重大安全生产事故或重大质量事故的

3.4.7被“信用中国(******/)” 列入失信被执行人(以评标当天查询的结果为准,若该网站查不到该响应人信息视为未被列入失信被执行人)

3.4******集团或河南能源濮阳园区供应商黑名单的。

3.5本项目□不接受代理商/经销商响应?接受代理商响应,需提交制造商授权书?接受经销商响应

3.6本项目?不接受联合体响应□接受联合体响应,需提交联合体投标协议

注:报名成功的单位,均被视为已充分理解本公告的有关要求,采购人及采购组织机构均无责任承担其是否符合合格供应商条件而引起的一切后果。

4.响应文件的递交

4.1 递交响应文件截止时间:2025  4 29 16 30 分。

4.2 递交方式:在中原云商电子投标平台(******/)上递交。

5.响应文件开启时间及地点

5.1响应文件开启时间:同递交响应文件截止时间。供应商必须在递交响应文件时间截止前至少半个工作日进行操作,如有问题请及时与采购机构联系人或中原云商电子投标平台客服电话联系。由于网络原因或其他原因导致投标人无法报名报价的,后果自负!

5.2响应文件开启地点:中原云商电子投标平台(******/)

6.技术要求:

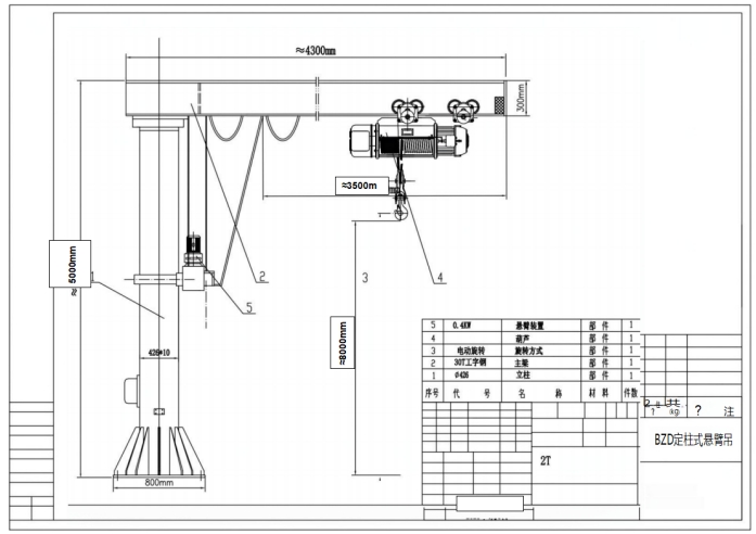
6.1质量标:起重量:2T;起升高度:8-9m;有效行程:3.5m;立柱高度:5m;额定工作速度:起升速度:4m/min; 电动葫芦运行速度:20m/min;起重臂回转速度:0.59m/min;电动机:起升3.0KW/1400r/min;葫芦运行:0.4KW/1380r/min;回转:0.4kw/1380r/min等详见附件1图纸。按《技术规范书》要求标准执行具体参数详见技术规范书出卖人保证所供货物及其材料完全符合国家现行有关质量标准和本次采购规定的质量、规格型号和性能的要求;出卖人保证其货物在正确安装、正常使用和保养条件下,在其使用寿命期内应具有满意的性能。凡是有《技术规格与要求》或其他技术文件要求的,必须提交技术响应文件。

******有限公司定柱式悬臂吊机采购技术规范书》技术联系人刘经理******;报名前先与技术人员沟通确认。

7.主要商务条款

7.1付款方式(不得严重负偏离)

安装调试完毕验收合格,供齐技术资料后,出卖人开具全额13%增值税票。买受人收到发票并财务挂账后,付合同总价款的 60 %;正常运行三个月没有质量问题,次月起付合同总价款的 30 %;剩余合同总额的 10 %作为质保金,质保期满无质保责任后一次性付清。

7.2运输方式及费用负担方式: 出卖人负责运输,运输费用由出卖人承担

7.3检验验收在买受人厂区进行,包括外观、数量、规格型号验收和运行质量验收两个方面,任何一个方面验收不合格均为交付不合格。外观、数量、规格型号验收应在收到货物后7日内按照合同供货清单进行清点核验,出具收货清单,但该清单不代表买方对合同设备的接受,双方应按合同约定进行后续的检验和验收;除技术协议另有约定外,运行质量验收应自投用起7日内没质量问题,出具验收证书。运行质量验收以买受人检验结果为准。                                           

外观、数量、规格型号检验不合格,买受人或使用人有权拒收货物、技术资料,出卖人应在接到买受人或使用人通知后 3天内到现场免费补齐短缺、不符合(或)损坏的部分。因此产生的一切费用,包括额外的运输费用等由出卖人自行承担。超过合同规定的交货期的,出卖人应承担逾期交货的违约责任。运行质量验收不合格的,出卖人应在接到买受人或使用人通知后 5 日内及时采取调换、修理或其他补救措施以使货物达到合格标准并再次验收,逾期应按合同规定的比例向买受人支付违约金。再次验收的所有费用由出卖人承担。出卖人在安装、调试、修理过程中导致人员伤亡及其他损害的由出卖人承担全部责任。

7.4出卖人对质量负责的条件及期限:质量保证期限为 1 年,质保期从双方共同验收合格之日起计算,或者交付之日起18个月,以先到为准;在该期间内,出卖人应对由于设计、工艺或材料的缺陷而发生的任何不足和故障负责,费用由出卖人负责;质保期内如发生质量问题,出卖人必须在买受人发出通知后48小时内给予答复并派人到现场免费维修或调换,并在7日内或双方商定的时间内完成;逾期出卖人没有弥补缺陷的,买受人可采取必要的补救措施,但其风险和费用由出卖人承担。维修或调换部分的质保期重新计算。

7.5按合同约定交货期,每迟延交货一天,按总货款的1%支付违约金;未事先征得买受人同意擅自更改合同列明的货物的,合同中写明价格的,按更换部分价值的5倍支付违约金,没有写明价格的,按合同总金额的10%支付违约金,因此给买受人以及产品使用人造成经济损失的,出卖人另需赔偿全部损失;产品的性能考核不能达到技术协议所要求的指标的,出卖人应免费予以矫正,并支付合同总价款30%的违约金;正常使用寿命低于承诺期限的,每减少一年,需按照总货款的15%向买受人支付违约金;质保期内如发生质量问题,出卖人没有按规定时间弥补缺陷的,应承担合同总价款30%的违约金;因此给买受人造成损失的,出卖人另需赔偿实际损失。损失赔偿额包括合同履行后产品使用人可以获得的利益、律师费、诉讼差旅费等。该费用直接从本合同款中扣除,不足扣除的,从其他未付款中扣除,仍不足扣除的,买受人仍可向出卖人主张剩余部分。使用人亦可代表买受人向出卖人行使追索权。

******法院管辖。

7.7□代储代销:该单价执行有效期为  月,如市场价格变动幅度超过10%,双方可另行协商调整或重新招议标确定;送货数量以实际通知送货量为准,到货后,如买受人不再需要的,可无条件退货。发现有以次充好,或其它严重质量问题的,买受人有权立即终止合同。

8.其他说明

8.1该标段指定品牌的,必须按指定品牌报价。投标供应商可以选择性能不低于所列参考品牌的其他品牌产品报价,但投标时应当提供有关技术证明资料,证明所投产品品质、档次、性能、技术参数不低于或相当于指定品牌,证明资料需经询比小组评审认可,未提供相关证明资料的可能导致投标无效;未指定品牌的,报价时必须写明所报产品的品牌及生产厂家。含税单价小数点后统一保留两位计算。

8.2该标段有可能分拆中标,如不同意,应予写明,否则,一律视为同意。

8.3如有任何偏离,在提交响应文件时应在偏离表如实说明;未提出任何偏离的,视为完全响应;存在实质性偏离的,视为不响应采购要求。评审小组从资格审查和响应文件的响应性审查两个方面进行初步评审,未通过初步评审的视为无效响应

8.4原则上一次报价,评审小组认为有必要时可进行二次报价,按最终报价核价。

8.5核价方法:初步评审合格的供应商在质量、服务、付款方式、全生命周期评价相同的情况下,由评审小组按照报价最低的原则推荐成交候选人,追求性价比最优。否则投票推荐成交候选人。

8.6报价有效期为报价截止之日起30天。

8.7响应服务费零元、响应保证金零元。

8.8 采购人不承担供应商准备响应文件和递交响应文件以及参加本次采购活动所发生的任何成本或费用。

9. 废标

发生下列情形之一的,本次采购废标:

9.1投标单位少于三,或合格投标人少于三竞争性不足的(但采购单位生产经营急需的除外)。

9.2投标单位报价均严重超出采购人预算的。

9.3投标单位报价均严重偏离正常市场价格的。

9.4因情况发生变化,该采购任务被取消的。

9.5评审小组否决所有报价的。

9.6评审小组推荐意见未获得采购单位招议标领导小组批准的。

9.7其他不符合公平、公开、公正原则和有关法律、法规及行业、采购单位规定的。

10.监督部门

******有限责任公司招标监督组

监督电话:0393-******/******

11.联系方式

采购人:******有限公司

地址:濮阳市人民路西段

联系人:钱女士

联系电话:******

 

 

附件:图纸

 

 

 

 

 

 

 

 

 

 

 

一、偏离表 

项目名称编号         

序号

采购文件条目号

采购文件内容

响应文件内容

偏离说明

 

 

 

 

 

说明:偏离说明应写明“正偏离”或“负偏离”。

响应人保证:除偏离表列出的偏离外,响应人响应采购文件的全部要求。

 

响应人(盖单位章):

      

 

二、其他

营业执照、5年成功运行业绩2个

明细表

序号

名称

型号规格

品牌

单位

数量

单价(元)

总价(元)

备注

 

 

 

 

 

 

 

 

 

 

 

 

 

 

 

 

 

 

 

******有限公司

定柱式悬臂吊机采购

技术规范书

 

一、项目简介及使用地点

1.1项目简介:

阻燃剂生产过程需采购定柱式悬臂吊向反应釜提升反应用物料。

1.2使用地点:

******有限公司MCA装置。

地址:河南省濮阳市人民路西段

二、设备名称及供货范围

按照本技术规范书及相关标准进行施工图纸设计,设备名称:定柱式悬臂吊机(起吊重量2T)******有限公司提供定柱式悬臂吊机(起吊重量2T)。包括制造、发货运输至现场、安装、调试、试机、验收与技术服务。

2.1设备名称

名称

规格

材质

单位

数量

定柱式悬臂吊机(起吊重量2T)

定柱式悬臂吊  (起吊重量2T)

碳钢

1

注:各设备结构、规格、材质等详见配置要求;

2.2供货范围和工作范围

2.2.1卖方的供货范围应包括设备详细设计、原材料采购、制造、检验和试验、包装和运输、现场安装就位、备品备件、技术支持及服务、技术文件及报告等内容。

2.2.2关键零部件清单

序号

名称

规格型号

材质

生产厂家

数量(台/套)

1

立柱

Φ428*10

无缝碳钢管

 

1

2

主梁

300*128*12*20

H型碳钢

 

1

3

起升电机

3kW

 

 

1

4

行走电机

0.4kW

 

 

1

5

回转电机

0.4kW

 

 

1

6

遥控器

 

 

 

2

2.2.3供货应满足本技术规格书及所有相关文件的要求,供货范围还应参照设备设计图纸,除图中注明“另外供货”或“非设备供货范围”的以外,图中其它所有描述的材料都应在供货范围之内。

2.2.4设备的设计、制造和试验应遵循本技术规格书及其附件指明的图纸、说明书、标准、规范和技术规定的要求。卖方应对设计、材料、制造和试验完全符合规范和技术要求负责。

2.2.5卖方的供货范围包括但不限于以下内容:

1)设备图纸描述的设备本体及所有组件。

2)裙座以及裙座类设备的地脚螺栓、螺母(每种规格备用2条)。

3)工艺静电接地板。

4)设备铭牌及托架。

5)包装及运输用的临时部件,包括但不限于、临时固定装置、运输过程中的保护装置等。

6)安装、检修过程中若需要专用工具,卖方须一并提供。

7)图纸和文件资料卖方按资料清单要求提供相关资料。

2.2.6卖方的工作范围包含但不仅限于以下内容:

1)设备的详细设计。

2)负责所供设备的制造、检验、试验等。

3)责所供设备涂漆、包装、运输等。

5)现场组对安装、试运行验证。

6)设备表面的处理及涂漆。

7)按买方要求提供培训、指导安装、试车指导等售后服务工作。

8)卖方须按照国家和政府有关部门的规定进行设备制造

三、主要部件(或设备)配置要求

 

序号

项目名称

单位

规格数据

备注

1

立柱

mm

428*10

高度5m

2

主梁

mm

300*128*12*20

长度4-4.5m(具体以现场测量为准)

3

允许旋转角度

 

360°

 

4

最大允许起吊重量

kg

2000

 

5

最大提升高度

m

8-9

 

6

提升电机功率

kW

3

 

7

行走电机功率

kW

0.4

 

8

回转电机功率

kW

0.4

 

9

有效行程

m

3.5

 

10

 起升速度

m/min

4

 

11

电葫芦速度

m/min

20

 

12

起重臂回转速度

m/min

0.59

 

 

电气主要部件配置要求

序号

项目名称

单位

规格数据

备注

1

电控柜

防水,防尘等级不能低于IP55,保持良好散热性能,碳钢喷塑,壁厚不小于2.5mm。

 

2

制动单元

 

满足设备长周期运行,消耗制动能耗效果,运行时间以每天工作24h计算。

 

3

端子排

接线端子排预留20%位置。

 

4

保护接地端子排

根据设计选用

 

备注:

1)******集团、菲尼克斯电气中国公司,麦格米特电气,******集团

******有限公司,郑州第三电缆公司,长江电缆。

3)******集团,瑞士******集团。

4)微型******集团,瑞士******集团。

************集团。

6)中间继电器采用以下公司产品:******集团、菲尼克斯电气中国公司,******集团。

******集团。

8)电机采用能效等级不小于2级,国产大厂品牌。

9)柜内指示灯、按钮、转换开关、大电流端子、铜排、导线、插接件、走线槽等均应符合国家或行业的有关标准。

10)端子排采用国际知名品牌的产品,端子排导电部分为铜质。端子的选用应根据回路载流量和所接电缆截面确定,盘内考虑预留总数量20%的端子及安装位置。

11)端子排标志应正确、完整、清楚、牢固,端子排的安装位置应使运行、检修、调试方便。

12)母线标明相别的颜色,A、B、C相分别为黄、绿、红色。母线加装绝缘热缩套管,使用寿命不小于20年

13)开关柜前后均应设有标明回路名称及柜号的标志牌,并满足招标方标识要求。

14)随机电气文件,电气产品合格证,电气图纸,电气元器件说明文件,设备电气元器件规格型号和数量。

3.1材料要求

3.1.1定柱式悬臂吊机用材料,除应符合国家和行业有关规范、标准的规定外,还应符合设计技术文件的要求。

3.1.2设备所用钢板、锻件、钢管、焊材(统称材料)必须具有数据齐全的质量证明书,入厂材料应按相应标准进行检查、验收,材料实物上应有清晰的出厂原始标记,包括材料的制造标准代号和生产厂商、钢材牌号、规格、炉批号、冶炼号,和质量证明书的炉批号相符合,主要材料的化学成分、力学性能应符合相关标准要求;合理地选择立柱、小车、吊钩及附件的材料,桥架结构采用Q345,使其能满足各种情况下的运行。

3.1.3卖方所提供的设备必须完全满足标准规范和依照买方提供的设备设计及材料、制造、检验、试验、包装运输等有关要求,并对所供设备及工作的质量负有全部责任。

3.2技术要求

3.2.1定柱式悬臂吊机的技术要求须严格按照国家和行业标准规范、设备工程设计图纸出具的设备制造技术条件、本技术规范书等技术要求执行,规范中出现矛盾或发生争议时,按就高不就低的原则确定。

3.2.2 起重机的设计和制造满足有关规范、标准的要求。起重机的配套设备不为国家明令禁止生产或淘汰的设备。除易损件外,起重机的寿命在20年以上。

3.2.3 起升、行走机构采用交流传动、交流控制系统。

3.2.4起重机的大小车运行机构的设计允许在空载全速运行时,在断掉电源的情况下与缓冲器碰撞。

3.2.5回转、小车和起升机构有可靠的制动系统及终点行程限位装置和缓冲装置。

3.2.6电气设备包括电动机及其控制设备,启动性能与机械部分相匹配。

3.3 结构要求

3.3.1吊钩材料用优质碳钢锻制,并经热处理并进行无损探伤,金相分析,钩口有防止钢绳脱落的安全装置。

3.3.2 起吊绳是具有挠性的钢丝,长度满足在最大起吊高度时,吊绳在卷筒上还留有不小于2圈的足够安全圈。

3.3.3 卷筒、铸造卷筒的毛坯件在加工前进行应力消除。卷筒的直径和长度满足当吊钩在最低极限位置时能使钢丝在卷筒上留有不少于2圈的安全和2圈固定圈。压板及螺栓牢固可靠。

3.3.4起升机机构上升极限设两道保护装置起重机采用缓冲器。

3.3.5结构形式

立柱钢管法兰焊接成筒型与预制地脚螺栓连接采用300工字钢作为葫芦运行轨道与立柱螺栓连接,为运输方便,主梁与立柱到现场采用螺栓连接。

3.3.6电动葫芦

电动葫芦为单速起升CD1型,要有起升机构,运行机构和电器装置。

3.3.7焊接要求

    焊接形式及尺寸符合GB324-88《焊缝代号》和GB986-88《手工电弧焊焊接头的基本形式与尺寸》的规定。需要现场焊接的部件,由供方现场实施焊接,并提供焊接检查方法。

3.3.8 操作方式

操作方式为线控加遥控地面操作,操作电压为36V。

3.4电气及控制要求

3.4.1电气设备包括必要的电动机电气操作器,制动闸、控制器、失压保护箱等,以及某些必要的电磁开关、过电流继电器或具有电线导管的保险接线盒、导线和限位开关。大车供电采用挂揽导电式。

3.4.2 电动机包括控制设备等的电压波动范围为80%110%,保证在80%~100%的额定电压和额定频率下启动。电动机额定力矩符合国家有关起重机电气设备标准,绝缘等级为F级(温升按B级考核),防护等级IP44。电动机额定力矩符合国家有关起重机电气设备配备标准。电动机具有足够的容量承受吊件的负荷,它在额定环境温度为 -10~+45 时可正常工作。

3.4.3起吊装置有一个自动复位式限位开关,它以常闭状态控制起吊电机电路起升限位。当吊钩到达移运上下限时,起吊电机电路就被断开。

3.4.4控制电缆截面不小于1.5mm2铜芯动力电缆截面不小于2.5mm2铜芯所有电缆吊线为船用型或起重机专用型。

3.4.5电控设备包括以下部分(不限于此):

起重机电源控制箱、大小车电气控制箱、失压保护箱。

3.4.6起重机有以下保护:

     短路保护、接地保护、过电流保护失压保护、上升限位保护、行程限位保护、紧急断电保护、断错相保护。

3.5 其他要求

3.5.1所有转动部件有可靠的润滑系统。

3.5.2  全部减速器采用硬齿面减速器,供方采取措施防止减速器渗漏油。

3.6焊接要求

3.6.1所有对接焊缝、角焊缝均需采用全焊透结构,焊缝与母材应圆滑过渡,不得有表面裂纹、未焊透、未熔合、表面气孔、弧坑,未填满和肉眼可见的夹渣等缺陷。角焊缝的外形应当凹形圆滑过度。焊缝表面不得有咬边。

3.6.2接管应与设备内表面平齐(内伸接管除外),内壁焊缝焊后应磨平。

3.6.3焊缝的焊渣及凸出的焊瘤应清除。焊缝缺陷的返修需先打磨后补焊,焊后不得有塌陷。

3.6.4对应涂装的设备内外表面采用喷射、抛射或采用动力工具进行表面除锈,除锈时应防止对金属表面造成损伤。除锈前,应清除可见的油脂和污垢;除锈后,应清除浮灰和碎屑,并将设备内的残留物清理干净。

3.6.5铭牌应采用不锈钢制铭牌,铭牌上应包括适用标准规范所要求的所有内容。卖方应将铭牌固定在容器显眼位置的托架上。铭牌上应注明下述信息:设备名称、设备位号、制造厂名称、产品出厂日期、出厂编号、型号与规格、设计温度与压力等。

四、设计、制造、安装、检验检测所需资质文件 

4.1合格投标人为独立法人,营业执照在有效存续期内。

4.2供应商需提供最近5年相同或相似成功运行业绩2个,并提供有效合同(合同内容应能体现货物主要技术参数或型号)。

五、货物使用环境及范围

海拔高度                  52-57m

年平均降水量       586.6mm

年平均气压                101.08kpa

气温                -20.7℃~ 42.4℃    

年平均相对湿度            70.1%

地震烈度                  7度(第二组)        

安装方式                  

六、货物适用标准

6 .1桥式起重机设计、制造、包装、运输、安装、验收符合下列标准、规范和有关的中国国家标准GB的要求。如下列标准与企业执行标准有矛盾,按较高标准执行。从订货之日起至供方开始投料制造之前的这段时间内,如果因标准、规程发生修改或变化,需方有权提出补充要求,供方满足并遵守这些要求。

6.2 供方须执行本规范书所列标准。有矛盾时,按较高标准执行。

6.3机器在环境温度为-10℃~45℃、空气相对湿度不大于 85%的条件下均能正常工作。

6.4卖方产品的设计、制造、安装、试验和检验应遵循本章提出的标准和规范。

6.5卖方对标准规范的选用和对条款的选择,须取得买方的确认。

6.6卖方(包括专利商和制造厂商)采用本章规定以外的标准和规范时,应采用最新版本的标准和规范,且须取得买方的确认。

6.7专利商和制造厂商的标准和规范,不得低于国家及行业的标准和规范,并须取得买方的确认。

    6.8本着设计标准统一、备件互换性等原则,设计图纸标准参照设计,并******设计院及买方沟通确认后方可施工。

规范中出现矛盾或发生争议时,按下列就高不就低的原则确定:

1) 国家法律、法规

2) 本技术规范书买方规定的设计要求

3) 附加技术要求

4) 本技术规范书提出的标准和规范或买方确认的代替标准和规范

5) 专利商、承包商和制造厂商的标准

6) 具体标准详见如下适用标准规范清单,如有新版的标准或规范颁布,应以最新版的有效标准和规范为准。

序号

标准编号

标准名称

1

GB3811-83

<起重机设计规范>

2

GB6067-93

<起重机安全规程规定

3

GB5905-86

<起重机试验规范和规程>

4

GB4315-86

<起重机电控设备>

5

GB11345-89

<钢焊缝和超声波探伤方法和探伤结果的分级>

6

GB8912-88

<优质钢丝绳>

7

GB699-88

《优质碳素结构钢技术条件》

8

GB700-88

《碳素结构钢》

9

GB1348

《低合金结构钢》

10

GB11352

《一般工程用铸造碳钢件》

11

GB9439

《灰口铸铁件》

12

GB1102

股钢丝绳》

13

GB3206

《优质碳素结构钢丝》

七、技术参数

    

序号

名称

单位

规格数据

备注

1

立柱

mm

428*10

高度5m

2

主梁

mm

300*128*12*20

长度4—4.5m(具体以现场测量为准)

3

允许旋转角度

 

360°

 

4

最大允许起吊重量

kg

2000

 

5

最大提升高度

m

8-9

 

6

提升电机功率

kW

3

 

7

行走电机功率

kW

0.4

 

8

回转电机功率

kW

0.4

 

9

有效行程

m

3.5

 

10

 起升速度

m/min

4

 

11

电葫芦速度

m/min

20

 

12

起重臂回转速度

m/min

0.59

 

 

 

设备设计、相关参数及技术要求详见(三、主要部件配置要求)

八、性能保证及质量、验收要求

8.1性能保证

8.1.1卖方负责设备的性能保证,须达到设计图纸及技术规范的要求,提供的设备应功能完整、可靠稳定,能满足在买方提供的各种工况下均能满足安全和持续运行的要求。

8.1.2如不能满足设计要求和性能保证,卖方免费提供改造维修服务,因卖方设计、制造质量问题导致设备无法正常稳定运行时,卖方须为此负全部(含直接、间接)责任,无偿提供一台同参数的设备,并赔偿因此造成的损失。

8.1.3卖方保证提供的设备是全新的、未使用过的,采用的是最佳材料和一流的设计和制造工艺,并经检测、试验是完全合格,并在各个方面符合合同规定的质量、规格和性能要求。

8.1.4材料的选择将按图纸设计中的要求进行,设备所使用的材料、制造工艺及检验要求,均不低于国家和行业等制定颁发的相关规定和标准。

8.1.5在制造、安装、试运转和性能考核期间,发生任何设备的损坏,买卖双方应立即共同检查,如果这种损坏是由于非买方原因引起的,则这种损坏由卖方在两周内自费处理(更正、修理或更换)。如果损坏是由于买方的原因引起的,卖方有义务提供协助及相关技术指导。

8.1.6性能考核应在装置满负荷连续稳定运行3个月后进行,买方在对装置性能考核试车是否准备就绪给予确认,并书面通知卖方。卖方性能保证以现场按设计工况满负荷连续运行72小时,各项指标满足设计要求为准。

8.1.7起重机能够在极限以内的任意位置提升、放下和保持。起重机能作静载1.25和动载 1.15   倍额定负荷的超载试验,保证起重机无损坏,无永久变形。挠度满足国标GB3811要求。

8.1.8整机在调试验收后5年内不出现大的设备故障。

8.1.9 设备安装调试期间,供方派员到现场进行技术服务解决安装调试中的问题;现场服务人员服从定做方的统一调度。

8.1.10 设备安装调试过程中,由于制造质量造成的不符合规定的偏差,有文字记录,由供方处理,费用也由供方自担。

8.2质量要求

8.2.1卖方保证设备的设计、制造、试验、检验和验收符合国家、行业标准以及买方设计资料的要求。

8.2.2设计和制造的定柱式悬臂吊设备其最低使用寿命保证为20年。离心机本体在正常操作条件下,能够连续运行3年无故障。

8.2.3设备将保证不存在设计、材料和车间制造的缺陷。供货商应对因设计缺陷、隐蔽故障、工艺或材料所造成的任何缺陷或故障进行赔偿。

8.2.4如果存在重大缺陷和不相符之处,则买方保留拒收任何设备与材料的权力。买方或其代理人保留在工程施工现场参观卖方设施的权力,以便在任一时间对所有设备与材料进行检验并确保发货及时。

8.2.5卖方制造的反应釜设备在设计所规定的操作条件下,须保证设备运行安全、稳定、可靠,具有高开工率和设计条件要求的操作弹性。因设备的制造问题达不到设计条件要求,卖方无条件承担改进或更换的责任。

8.3检验和试验要求

8.3.1卖方须按标准和规范严格进行厂内各生产环节的检验和试验。卖方提供的合同设备须签发质量证明、检验记录和测试报告,并且作为交货时质量证明文件的组成部分。检验的范围包括原材料和元器件的进厂,部件的加工、组装、试验至出厂试验。

8.3.2合同设备制造过程中买方代表或由买方授权的第三方检验人员到卖方工厂进行监制,卖方有责任和义务予以积极配合,应提供方便。

8.3.3当设备制造达到质量控制点时,卖方应通知买方监造人员共同进行质量检验,只有当本控制点合格后才能进行下一个工序的生产。对于买方监造人员提出的合理化建议供方应予以采纳并执行,但买方监造人员的确认并不能免除卖方对设备的制造质量所负有的责任,对于双方约定的见证试验,卖方应于试验前至少15个工作日通知买方。

8.3.4在监造过程中,如果任何被检验或测试的货物不能满足规格的要求,买方可以拒绝接受该货物,卖方应更换被拒绝的货物,或者免费进行必要的修改以满足规格的要求。

8.3.5卖方工厂的验收试验不代表买方或设计方放弃规定条件下做现场试验的要求,也不能解除卖方满足设计要求的责任。

8.3.6买方在货物到达现场后对货物进行检验、测试及必要时拒绝接受货物的权力将不会因为货物在启运前通过了买方或其代表的监造及检验、测试和认可而受到限制或放弃。

8.3.7本技术规格书涵盖的设备和材料,如果需要,将接受买方或代理的检验和试验。其检验不作为设备任何部件和材料的验收,也不解除卖方关于设备、材料、工作和性能的任何责任及其保证。

8.3.8本技术规范书规定了设备满足技术规格、标准或合同要求的最低检查、检验和试验项目的要求,检验和试验项目还须满足国家、行业标准规范以及其它必要的检验项目规定。

8.4验收要求

8.4.1到货验收:买方按照卖方提供的设计制造图及相应的制造标准进行开箱验收(开箱验收:指对设备运输过程、附属零件、出厂资料及设备外观的验收),开箱验收的地点在买方的收货地点。定柱式悬臂吊机、电缆、控制仪表需进行材质检验。定柱式悬臂吊机应随设备附带有完整的竣工图样,合格证,产品质量证明文件,产品铭牌的拓印件或复印件,质量保证书,检测报告,外观尺寸检验记录,材料证明书,使用说明书等资料。

8.4.2所有设备,材料,备件的检查和试验报告,材料证明,质量证书等检查文件均应由卖方随机提供

8.4.3设备竣工验收运行性能考核。由买方提供试验标准后,买方、卖方双方参加,共同签字确认。若性能验收的结果不能满足技术协议的要求,允许卖方进行改造,在改造结束后由买方重新组织验收,因设计和制造原因造成买方损失由卖方承担。如性能考核达不到设计要求,要免费给予更换,并赔偿因此造成的损失。

九、安装、调试要求

9.1卖方负责安装、调试及试运行指导等工作。

9.2卖方应派具有现场安装调试经验丰富的工程技术人员到现场安装、调试、负荷试车等相关工作。

9.3无论是在安装调试还是在日常运行中,一旦发现设备质量问题,卖方在接到买方要求技术服务的通知后,应在12小时内做出回应并提供可行性技术方案,24小时内到达买方现场,所产生的费用和损失由卖方承担。

9.4在安装、试运转和性能考核期间,发生任何设备的损坏,买卖双方应立即共同检查,如果这种损坏是由于卖方原因引起的,则这种损坏的零部件应由卖方在48小时内送到现场;如果这种损坏是由于买方的原因引起的,卖方应提供协助及相关技术指导。

9.5卖方在安装调试时要按行业标准施工或操作。卖方的服务人员在买方现场应遵守买方现场的有关规章制度,并接受买方的检查和相关管理,如果发生人身伤害事故,其全部费用由责任方负担。

十、服务及质保要求

10.1质保期

卖方所提供产品的质量保证期设备满负荷安全稳定运行12个月或设备到货验收合格后18个月,二者以先到为准。

10.2售后服务

10.2.1开工正常后,现场如出现问题,卖方接到通知后应在2小时内给予答复。若需派人到现场解决问题,卖方接到通知后24小时内到达现场。

10.2.2在质量保证期内设备出现质量问题,由卖方免费维修或更换。

10.2.3在设备的整个寿命期间卖方须及时提供买方订购的备品备件,解答买方提出的问题,卖方长期向买方提供较稳定价格的备品备件。

10.2.4卖方负责成套范围内的外购设备的售后服务协调。

10.2.5设备运行验收后,第一次大修期间,买方要求卖方委派技术专家进行无偿服务。

10.3人员技术培训

卖方须派工程技术人员对买方人员进行免费培训。卖方所派技术人员须对产品的原理、结构、特点、安装、调试、操作、维护保养、检修等方面均非常熟悉,且具有同类产品5年以上丰富的维修经验。

十一、运输及包装要求

11.1交货方式 

现场车板交货,卖方负责办理运输和保险,有关运输和保险的一切费用由卖方承担。

11.2交货条件

11.2.1本合同设备的交货时间和交货顺序应满足工程建设设备安装进度和顺序的要求,应保证及时和配套的完整性。

11.2.2交货时间:

现场车板交货期为合同签订后10天完成安装并交付。

11.2.3合同设备的交货地点为买方施工现场车板交货。

十二、对供应商的业绩要求及所须提供技术资料要求

12.1供应商需提供最近5年相同或相似成功运行业绩2个,并提供有效合同(合同内容应能体现货物主要技术参数或型号)。

12.2卖方提供的资料应使用国家法定单位制即国际单位制。技术资料和图纸的文种为中文。

12.3资料的组织结构清晰、逻辑性强。资料内容要正确、准确、一致、清晰完整,满足工程要求。

12.4卖方提供的图纸应清晰,不提供缩微复印的图纸。

12.5卖方提供可编辑的电子图纸。

12.6卖方提供压力容器制造、设计检验监督证明以及合格证。

12.7卖方提供设备详细设计相关全部资料,并出蓝图。

12.8卖方提供的技术资料、设计文件应按照版次、并带有修改标记,同时按照设计、审图、竣工等用途加盖设计出图专用章、审图专用章、竣工图章等。最终提供的设计文件应该是完整的,终版基础设计文件和详细设计文件各3份(均为正本);Word,Excel,ACAD等格式的可编辑文件电子版2份。

12.9技术资料须满足设备报备和注册所需要的全部资料。包含但不限于设备竣工总图,产品质量证明文件,设备制造监督检验证书,设计文件,铭牌等。技术资料须提供设备详细装配图及零部件图等详细尺寸及标准,满足设备后期检维修需要。

12.10卖方提供的技术资料包含但不限于以下内容:

 

序号

名称

份数

1

设备的详细工程设计图纸

3N+2E

2

设备设计计算书

3N+2E

3

制造工艺说明

3N+2E

4

检验、试验程序说明

3N+2E

5

检验及质量计划

3N+2E

6

备品备件清单

3N+2E

7

产品质量证明书及产品铭牌的拓印件

3N+2E

8

产品合格证

3N+2E

9

设备特殊说明(如有要求)

3N+2E

备注:N为纸质版,E为电子版

十三、其他

13.1依据本技术规范和中标单位投标文件等签订的技术协议作为合同的附件,与合同具有同等的法律效力。买方对图纸和资料的认可,以及针对合同设备设计、制造等所采取的一切措施不能解除卖方应满足买方合同中所要求的责任。

13.2内容发生矛盾时,以较严格的要求为准。

13.3遵循技术规范和本技术协议要求不能理解为可以减轻和解除卖方的责任和保证以及合同中规定的卖方的义务。

13.4买方如发现卖方所提供的设备和材料低于双方约定的标准时,有权要求卖方进行更换,费用由卖方承担。

13.5最终设计与技术协议有差异时,则技术条件的要求以最高者为准,性能参数以最优者为准。

13.6卖方提供的文件,其中包括设备数据表、设计图纸和文件采用的计量单位为中华人民共和国法定计量单位,采用的文字为中文

13.7当各标准、规范之间存在矛盾时,则技术条件的要求以最高者为准,性能参数以最优者为准。

13.8成套设备采购,应包括但不限于技术协议所明确的内容,对于属于整套设备运行和施工所必需的部件,即使本合同附件未列出和/或数目不足,卖方仍须在执行合同时补足。

13.9招标文件和投标文件与技术协议矛盾之处以技术协议为准。

13.10合同签订后,买方保留对技术协议提出补充和修改的权利,卖方保证予以配合。如提出修改,具体项目和条件由双方商定。

13.11如需指定生产厂家或品牌的,原则上不应少于三个,并写明投标供应商可以选择性能不低于所列参考品牌的其他品牌产品报价,但投标时应当提供有关技术证明资料,证明所投产品品质、档次、性能、技术参数不低于或相当于指定品牌。

 

设备专业联系人:  刘军法    电话:******

工艺专业联系人:  吕广龙    电话:******

查看项目详细信息

版权免责声明

【1】凡本网注明"来源:机电设备采购平台"的所有文字、图片和音视频稿件,版权均属于机电设备采购平台,转载请必须注明机机电设备采购平台,违反者本网将追究相关法律责任。

【2】本网转载并注明自其它来源的作品,是本着为读者传递更多信息之目的,并不代表本网赞同其观点或证实其内容的真实性,不承担此类作品侵权行为的直接责任及连带责任。其他媒体、网站或个人从本网转载时,必须保留本网注明的作品来源,并自负版权等法律责任。

【3】如涉及作品内容、版权等问题,请在作品发表之日起一周内与本网联系。

分享到朋友圈
一天内免费查看信息来源站点

分享成功后点击跳转

注册使用者、商机更精准
姓名:*
手机号:*
验证码:* 发送验证码 已发送(60s)
机构名称:
职位:
供应产品:

开通黄金会员,即可查看实时商机信息(30条/天)

每天提供100000+条招投标采购信息,随时掌握最新发布的商机,实时更新

开通地区选择
全国
浙江
黄金会员权益
查看信息(30条/天)
信息订阅(5组)
来源跳转验证(30次)
附件下载(部分正文涵盖)
铂金会员权益 (包含黄金会员权益)
查看信息(100条/天)
信息订阅(10组)
来源跳转验证(100次)
项目导出(100条)
附件下载(部分正文涵盖)
钻石会员权益 (包含铂金会员权益)
查看信息(无限制)
信息订阅(无限制)
来源跳转验证(无限制)
企业推荐
项目导出(1000条)
企业信息
附件下载(部分正文涵盖)

抱歉,您当前会员等级权限不够!

此功能只对更高等级会员开放,立即提升会员等级!享受更多权益及功能

请扫码添加客服微信或拨打客服热线 0571-28951270 提升会员等级
订单创建成功,打开微信扫一扫完成付款

打开微信扫一扫完成付款

商品名称 暂无
订单编号 暂无
支付方式 微信支付
微信支付 ¥ 249
切换方式

切换到支付宝支付

关注微信
关注微信
关注App
关注App
微信客服
微信客服
返回顶部